User not logged in - login - register
Home Calendar Books School Tool Photo Gallery Message Boards Users Statistics Advertise Site Info
go to bottom | |
 Message Boards » » process of building my custom home Page [1] 2, Next  
ctnz71
All American
7207 Posts
user info
edit post

we are under contract on a lot near oberlin and fairview.

plan is 2530 sqft with ~600 sqft to finish later on the 3rd floor.

it appears that the appropriate value is in the home to close the loan. hoping to close in a couple weeks and start this thing.

2/24/2013 2:53:25 PM

ctnz71
All American
7207 Posts
user info
edit post

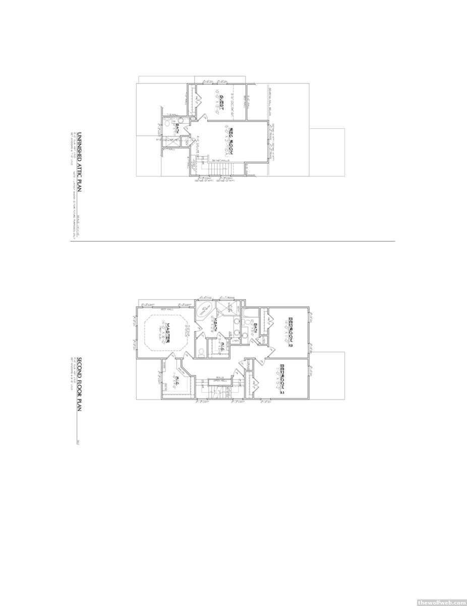
prelim drawings for you guys to tear apart. i know the porch will probably extend across the front





2/24/2013 3:24:29 PM

jaZon
All American
27048 Posts
user info
edit post

needs a room that takes up at least 2 floors

2/24/2013 6:12:21 PM

DROD900
All American
24717 Posts
user info
edit post

I really don't like that laundry location. I've never been a fan of having the laundry in the kitchen, and it's even worse that it's not on the same floor as the bedrooms

Who did your designs/engineering?

2/24/2013 6:20:46 PM

ctnz71
All American
7207 Posts
user info
edit post

most moms (at least the ones we talk to) want the laundry on the same floor as the kitchen for babies/kids sleeping purposes

jeff spivey is designer. hasn't been to engineering yet.


lot is 58x135

2/24/2013 9:18:13 PM

richthofen
All American
15758 Posts
user info
edit post

Dang, narrow/deep lot. Seems like a good plan for the space. I'm also a fan of below-grade garages, as the garage door doesn't become part of the facade.

I had thought that area was mostly built out. Is this a teardown, or did they carve this off another larger lot?

2/24/2013 10:41:55 PM

Honkeyball
All American
1684 Posts
user info
edit post

Any thoughts on what you'd like differently about it?

How do you guys live on a day to day basis? Dining room and kitchen are setup with room to be more open, but this feels pretty formal. The lot you have, urban infill? If a muddy backyard is a regular thing, you have room to turn laundry to a combination mudroom and allow for a larger breakfast table in that nook.

2/24/2013 10:46:40 PM

ctnz71
All American
7207 Posts
user info
edit post

^^ it was a year down in 2009 that was divided in to two lots. Bought lot from a couple that intended to bud on it.

^ I think we are pretty content with the design. As a builder, this probably won't be our forever home. Our first home we were surrounded by a lot of poverty... Now we are surrounded with the opposite. It should be an interesting change.

[Edited on February 24, 2013 at 11:08 PM. Reason : Oh]

2/24/2013 11:05:37 PM

panthersny
All American
9550 Posts
user info
edit post

Overall good use of the lot size with your layout....only major dislike is the corner tub in the master bath (personal preference) . Are you doing 2x4 walls or 2x6 to exterior? What about sound insulation with the garage ceiling?

2/24/2013 11:16:49 PM

ctnz71
All American
7207 Posts
user info
edit post

It will be a claw foot tub.

Garage ceiling will have to be insulated as it probably won't be heated/cooled. May drop a supply in there

2/24/2013 11:42:57 PM

BJCaudill21
Not an alcoholic
8016 Posts
user info
edit post

The only thing I don't really like is the closed in family room.. I'd probably tear leave it open at the left foyer wall to the dining room wall, maybe even drop it down 8 inches (I have a new fascination with dropped living rooms)

2/24/2013 11:57:46 PM

panthersny
All American
9550 Posts
user info
edit post

@ctnz71...that will be a nice touch.

Best wishes to you as we both build new homes!

2/25/2013 4:04:02 AM

robster
All American
3545 Posts
user info
edit post

Yeah, not a fan of the separated dining/living/kitchen.

If it was my home, I would have that kitchen flipped a bit so that you had island/bar space overlooking the "dining" area, which would be a large distressed wood DR table for daily use ... which opened up to the living area somehow as well. Sorta our dream layout ... with no functional "breakfast" area ... just a single flow kitchen, dining, living ...

2/25/2013 7:49:27 AM

ctnz71
All American
7207 Posts
user info
edit post

I'm attaching a farm table to the island for daily eating. We think a formal dining room should be totally separate. Our first home had the living and kitchen connected and we hated it.

2/25/2013 9:32:50 AM

CalledToArms
All American
22025 Posts
user info
edit post

^^Just depends on personal tastes. I wish we didn't have a formal dining room and I agree that I also wouldn't put one in a place I was building but there are obviously plenty of people who still like that setup and I don't see it ever really going away anytime soon because it is a pretty traditional house setup.

I do agree for myself in the future, whenever we buy/build something new years from now we will probably just have a well laid out, open kitchen, dining, and living. We had to compromise on this house based on the area and not wanting to build new so we got a formal living room and formal dining room, and I really hate having that square footage in those rooms vs a more open layout with those 2 rooms removed.

2/25/2013 9:47:51 AM

BobbyDigital
Thots and Prayers
41780 Posts
user info
edit post

Quote :
"most moms (at least the ones we talk to) want the laundry on the same floor as the kitchen for babies/kids sleeping purposes
"



why, for the noise? I know a few moms like that, where there must be absolute quiet anytime the baby is asleep. those moms are stupid. If you go about your life normally, they get used to the noise and sleep right through it.

otherwise, laundry is always better on the same level as the bedrooms.

but, to each his... or her own.

2/25/2013 10:02:57 AM

ctnz71
All American
7207 Posts
user info
edit post

^^ while I agree that a formal dining room is not always necessary... It is necessary in this neighborhood due to potential buyers and price point.

^ my kid spent the first year of his life in a noisey downtown. He sleeps well with consistent noises. Things like doors opening and closing and doing laundry right outside his room would wake him up or keep him from falling asleep. Again, a laundry room would not be a deal breaker to someone that would want to be in this area.

So my "stupid wife" is going to get the laundry room where she wants it.

[Edited on February 25, 2013 at 10:50 AM. Reason : K]

2/25/2013 10:50:05 AM

CalledToArms
All American
22025 Posts
user info
edit post

Yeah, I'm sure the majority of people still buying houses are interested in a formal living room. I have seen a big shift away from that, but it still isn't the majority opinion of course so I can understand why you'd want that.

2/25/2013 11:21:33 AM

wdprice3
BinaryBuffonary
45912 Posts
user info
edit post

I think the laundry room location is fine/normal. there isn't a better place for it.

anyone thinking that it should be on the second level is wrong. W/D's should not be on upper levels.

2/25/2013 12:15:32 PM

ActionPants
All American
9877 Posts
user info
edit post

^Why?

2/25/2013 12:27:26 PM

CalledToArms
All American
22025 Posts
user info
edit post

Our master and 2 other bedrooms are on the 2nd so our W/D are up there and I much prefer that to having it downstairs since our bedroom is upstairs. That's just us though. I'm sure other people have reasons they like them on the 1st.

[Edited on February 25, 2013 at 12:31 PM. Reason : ]

2/25/2013 12:29:00 PM

wdprice3
BinaryBuffonary
45912 Posts
user info
edit post

large wobbling, loud machines with either large amounts of water or high heat on the 2nd floor is just a bad idea; especially when located near bedrooms.

2/25/2013 1:16:29 PM

CalledToArms
All American
22025 Posts
user info
edit post

It's not really that big of an issue. Our machines are not very loud, especially when the door is closed to the laundry room. In fact, the biggest issue we have is that we are watching, TV, reading, or doing something else around the house and we forget to check if the washer has spun out The heat is really a non-issue and I'm not really sure what the issue is with the bedrooms. We aren't doing the laundry while anyone is sleeping.

The only issue I really ever see and agree with is that a W & D on the 2nd floor has the chance of a leak from to the washer. We obviously have ours in a pan with a drain, but who knows how well it would actually work. But, it's not as bad as a water heater in the attic since it isn't just sitting around full of water all the time waiting to rust out. It would have to be a failure at the water connection or within the unit. I've never had a washer leak on my parents growing up or me. I guess the chance is there, but hopefully the catch-basin and dedicated drain would prevent any major damage.

[Edited on February 25, 2013 at 1:32 PM. Reason : ]

2/25/2013 1:23:35 PM

BobbyDigital
Thots and Prayers
41780 Posts
user info
edit post

Quote :
"So my "stupid wife" is going to get the laundry room where she wants it. "


honestly no offense to your wife-- while typing that i was specifically thinking of a specific couple of people we know, and let the rage flow.

2/25/2013 3:28:12 PM

jbrick83
All American
23447 Posts
user info
edit post

Count me in as a fan of not having the W/D on the second floor and/or near the bedrooms. I like it near/beside the kitchen...preferably near a "mudroom" if you have one. I like this for several reasons:

I think it should be near front door/back door/some sort of ground entrance. As a kid, I was always coming into the house dirty as shit. I would take off my nasty ass clothes, step in the house, and toss them on top of the washing machine. Even now, when coming in from a long run/workout/dog walk...I can step in the house, immediately undress, and throw my clothes in the washing machine. Don't want to track that mess through the house.

No risk of noise near the bedrooms and/or leaks damage going through a floor.

Also in relation to the floor plans posted....I like a more open concept. You could have still had a formal dining room and had a more open concept with a kitchen being open to the living room/den (obviously you would have had to switch that plan around somewhat). I guess as long as your design allows future owners to be able to "knock out walls"...I just think it's something that everyone is gradually moving towards.

2/25/2013 6:05:59 PM

wdprice3
BinaryBuffonary
45912 Posts
user info
edit post

^yep. flooding is one issue (that pan won't do much unless you catch it early). fire from the dryer is another. I'd rather a fire start away from bedrooms and not on the 2nd floor (especially with 2nd floor bedrooms). For older homes (and poorly constructed newer homes), noise and/or vibrations can be quite the annoyance from 2nd floor W/Ds.

and as jbrick mentioned, having a true mud room/laundry room is great for coming in dirty and dropping nasty clothes right in the wash. These rooms also can make great "utility" rooms for convienent storage.



[Edited on February 25, 2013 at 9:12 PM. Reason : .]

2/25/2013 9:06:37 PM

ctnz71
All American
7207 Posts
user info
edit post

It will be traditional in style

2/25/2013 10:57:33 PM

CalledToArms
All American
22025 Posts
user info
edit post

I understand the concern over leaks, but my parents never had a leak and we have yet to have one either. And I still don't get the issue relating to proximity to the bedrooms; we're never running the washer and dryer at night or when anyone is sleeping.

We have ours on the 2nd and definitely prefer it there since the bedrooms are up there. In a future house, with a different layout I would have no problem considering a W/D on the first floor. It wasn't something we looked for when we are buying and it's not that I think it is BETTER than a first floor room, it just hasn't been a problem for us at all and has been extremely convenient to have it on the 2nd floor of this house. It also probably helps that our gym is on the 2nd floor directly next to the laundry room so after doing weights, treadmill, bike, plyo, or whatever I drop my clothes off there. The amount of times I have come into my house and needed to drop clothes in the washer immediately due to being nasty is extremely small compared to the daily changing and working out that benefits from having the laundry room across the hall.

What are you doing with the crawlspace? Did you consider getting it truly sealed and semi-conditioned?

2/26/2013 8:23:47 AM

ctnz71
All American
7207 Posts
user info
edit post

I thought about it. I need to look and see how the budget is going to end up

2/26/2013 8:26:11 AM

CalledToArms
All American
22025 Posts
user info
edit post

Gotcha. I haven't gotten a quote for our house and I don't know if I will. It's a 'nice to have' and I definitely agree it is better than the traditional vented crawlspace, but at the same time lots of people have gone the vented route without major problems.

If I was ever building, I would at least get a quote on it just to see.

2/26/2013 8:30:51 AM

Skack
All American
31140 Posts
user info
edit post

If my laundry was on the same floor as my bedroom I would just dress myself from the dryer every day and never fold anything. Having it in the cold ass garage gives me incentive to get it all at once.

2/26/2013 11:57:44 AM

BobbyDigital
Thots and Prayers
41780 Posts
user info
edit post

^ also possibly the #1 use case for taking on a wife.

2/26/2013 1:24:25 PM

slaptit
All American
2991 Posts
user info
edit post

You 2nd-floor W/D fans should have a hose burst on you while you're not home and see how much you like it then (should've turned the water off RAWR RAWR)

Ideally, a 2nd floor laundry room should either be tiled with a dedicated floor drain, or have auto-sensing shutoffs on the water connections. Realistically, it's just better to put them on the ground level or basement if available, but sometimes it's just easier to give in to the wife's demands...

2/26/2013 5:59:22 PM

bcvaugha
All American
2587 Posts
user info
edit post

as a landscape contractor (the last one on the project) I'll throw you a few tips of things that always bother me (this happens on smaller houses all the way up the the multi-mil mansions)

1) don't allow black corrugated PVC to be use for gutters, use the 4" slick-walled white PVC

2) put plenty of of water spigots on the outside of the house and one near the garage for sure (some houses will only get 1 and you'll have to run a hose all around the house

3) power outlets outside need in-use covers due to code, most electricians use the cheap plastic ones... make them or buy for them the metal ones. the plastic ones only last a couple of years in the sun

only problem with having the garage on the lower floor is when you get groceries, lots of stair time which you might not mind but older folk won't want the house. you can counter this with some guest parking or something on the upper level of the property.

Dont let your builder hire the landscaper, they tell you they have a "budget" of which they're taking 5-15% so you get that much less

2/26/2013 7:13:20 PM

ctnz71
All American
7207 Posts
user info
edit post

There is street parking for groceries

I am the builder

2/26/2013 7:28:06 PM

mikey99cobra
All American
1138 Posts
user info
edit post

Quote :
"as a landscape contractor"


What do you recommend for use around the house in flower beds/nature areas to keep weeds down? The last batch of mulch I put down seem to promote weed growth instead of reduce it. Maybe I am using the wrong type mulch.

Also, do you re-seed large yards, large as in 4 acres?

2/26/2013 8:40:58 PM

BanjoMan
All American
9609 Posts
user info
edit post

Seems like everybody these days are pushing for the open concept. So, why are dining/living closed off?

BTW I like the master bath design for the fact that you separate the nice tub from the toilet. I always when I see people put a commode right next to a luxurious tub.

[Edited on February 26, 2013 at 10:27 PM. Reason : s]

2/26/2013 10:24:35 PM

richthofen
All American
15758 Posts
user info
edit post

I've experienced flooding from a washer supply line in two different places I've lived. One was on the ground floor--had to steam clean, then dry out the carpet with big fans. One was on the second floor--they had to replace the ceiling drywall where it came through. One of those things is much less trouble than the other.

So I agree with the ground floor laundry.

2/27/2013 12:15:11 AM

ctnz71
All American
7207 Posts
user info
edit post

^^Traditional house in a traditional neighborhood

2/27/2013 7:25:14 AM

jbrick83
All American
23447 Posts
user info
edit post

I feel like it should only be important that the outside of the house match the neighborhood. Obviously there are limits...but I don't see how having an open floor plan is going to segregate you from the rest of the neighborhood.

If you like a traditional floor plan...that's fine. But I don't see why your floor plan has to match the neighborhood's.

2/27/2013 9:17:06 AM

ctnz71
All American
7207 Posts
user info
edit post

The buyer That our house is going to attract is going to be looking for something more traditional

2/27/2013 9:26:22 AM

Arab13
Art Vandelay
45182 Posts
user info
edit post

Your 'living spaces' on the main floor are on opposite ends of the house. Was that the intended thought or? That order of living room-dining room-kitchen is a older format where the living room doubled as a sitting room/parlor. If you pocket door (large double) the connections between Dining-hall-living rooms it could still be a useful space. If you're spending most of your time in the back of the house having a good line of sight/sound to the front may be useful. Consider a shared access bathroom between the two bedrooms on the second floor. Laundry chute, consider it. Heck even a dumbwaiter lift from the garage up to the first level may be a good idea.

Odd that a traditional house in a traditional neighborhood wouldn't have a front parking pad at least, and would have to resort to street parking.

Back deck may want a staircase down to the backyard.

2/28/2013 12:07:20 PM

wdprice3
BinaryBuffonary
45912 Posts
user info
edit post

Quote :
"So I agree with the ground floor laundry."


Yep. When I was in school, a washer on the 3rd floor leaked and flooded the two apartments below... one being the one I was in... not fun. 80% of carpet/pad replaced; remaining was cleaned/dried; bunch of ceiling removed and replaced. The other flooded apartment had it worse; then then one with the leak had tons of work done too. Best to limit damage to 1 floor if you have a choice in your home. Same reason 2nd floor kitchens are a bad idea.

[Edited on February 28, 2013 at 4:17 PM. Reason : .]

2/28/2013 4:17:19 PM

ctnz71
All American
7207 Posts
user info
edit post

^^ the lot is 58x135 so space is limited. Street is not busy.

2/28/2013 5:22:19 PM

skokiaan
All American
26447 Posts
user info
edit post

Looks like a mcmansion. Right side elevation is hideous

3/2/2013 3:16:03 PM

ctnz71
All American
7207 Posts
user info
edit post

No one is going to see it. Not too concerned. It's 10' to the property line and theirs is 10 feet as well.

3/2/2013 8:19:53 PM

richthofen
All American
15758 Posts
user info
edit post

2530/3100 sq. ft. isn't really a McMansion. Also, seeing as how this house is being built not as a "lifetime home" but with the intention to move on 5-10 years down the road, you have to consider what your buyer will want. It's not super distinctive but it's not unattractive.

Another of your typical McMansion issues is building a home too big for the size of the lot. You can only do so much with a 58' wide lot, but assuming it doesn't tower over the neighboring residences and that it follows the established setbacks from the street, shouldn't have those issues.

3/2/2013 11:25:47 PM

slut
All American
8357 Posts
user info
edit post

Not a McMansion, +1

3/3/2013 9:38:59 AM

StingrayRush
All American
14628 Posts
user info
edit post

maybe i skimmed and missed it, but why are you so sure this isn't your forever home? if it isn't, why not go someplace where it can be? just trying to build equity and sell it for what you really want down the road?

3/3/2013 10:38:37 AM

ctnz71
All American
7207 Posts
user info
edit post

I am a builder. I can cash out tax free (Obama willing) in a couple years. We may love the neighborhood enough to stay there for a while but who knows. All the homes (with the exception of a few that haven't been torn down) are the same width. Ours is about 15 feet shorter than the houses on either side of it.

3/3/2013 12:25:59 PM

 Message Boards » Old School » process of building my custom home Page [1] 2, Next  
go to top | |
Admin Options : move topic | lock topic

© 2026 by The Wolf Web - All Rights Reserved.
The material located at this site is not endorsed, sponsored or provided by or on behalf of North Carolina State University.
Powered by CrazyWeb v2.39 - our disclaimer.