User not logged in - login - register
Home Calendar Books School Tool Photo Gallery Message Boards Users Statistics Advertise Site Info
go to bottom | |
 Message Boards » » adventures of building a custom.home Page [1] 2 3 4 5 6, Next  
panthersny
All American
9550 Posts
user info
edit post

So we have embarked on this journey....bought the land 18 months ago,worked with an architect, researched and worked with 8 builders before selecting one, now hopefully start clearing land in 2 weeks

Excited and nervous

2/18/2013 7:46:35 AM

mdozer73
All American
8005 Posts
user info
edit post

I'll be interested to follow this thread.



[Edited on February 18, 2013 at 7:53 AM. Reason : .]

2/18/2013 7:51:47 AM

CalledToArms
All American
22025 Posts
user info
edit post

congrats and good luck!

I'd love to build some day and already have floor plans and mods in a folder just in case Our biggest problem (that drove us away from building) when we just bought our house a few years ago was that, in order to build, we were forced into the suburban sprawl or more rural areas opposed to being closer to the city core like we wanted :/

Any details on the house you're willing to share now or do we have to stay tuned?

2/18/2013 8:10:29 AM

panthersny
All American
9550 Posts
user info
edit post

Ill post pictures on the plans soon

2/18/2013 9:06:51 AM

BobbyDigital
Thots and Prayers
41780 Posts
user info
edit post

^^

we ran into the same issue in RVA. Wanted to build custom, but the neighborhoods that were available to us were on the outskirts of the suburb we chose to live in. We wanted to be on the "inskirt" that gave us the happy medium between the best schools and being close to the city, so ended up buying an existing home for that reason.

2/18/2013 10:36:30 AM

panthersny
All American
9550 Posts
user info
edit post

Who we are building with:

Www.jhallhomes.com

https://www.facebook.com/pages/J-Hall-Homes-Inc/115023631895139

2/18/2013 12:51:04 PM

panthersny
All American
9550 Posts
user info
edit post

Ok so specs:

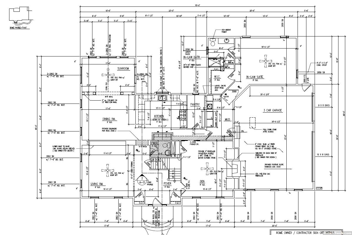
5 bedroom, 4.5 bath, 4443 finished finished sq ft, 1799 unfinished sq ft. Screened in porch, 12x23 blue stone patio, 3 car garage, 6.5 acres with creek on back edge of property feeding into local reservoir.

2/18/2013 2:08:58 PM

panthersny
All American
9550 Posts
user info
edit post

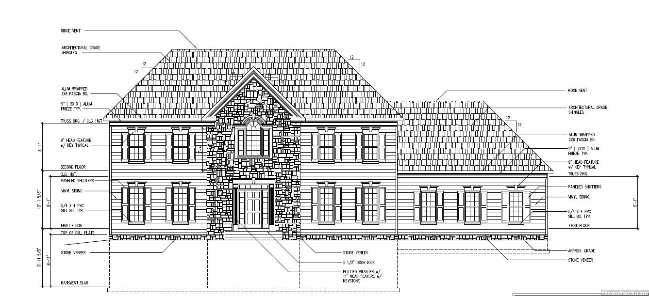
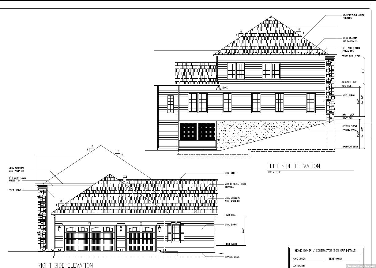
Front Elevation:



Rear Elevation:

2/18/2013 2:31:55 PM

panthersny
All American
9550 Posts
user info
edit post

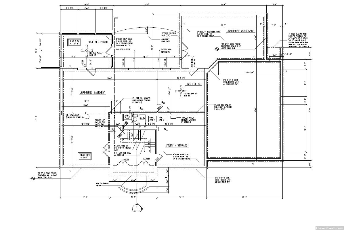
Side Elevations:



Basement:



Note the 15 x 28 workshop!!! WIN!

First Floor:



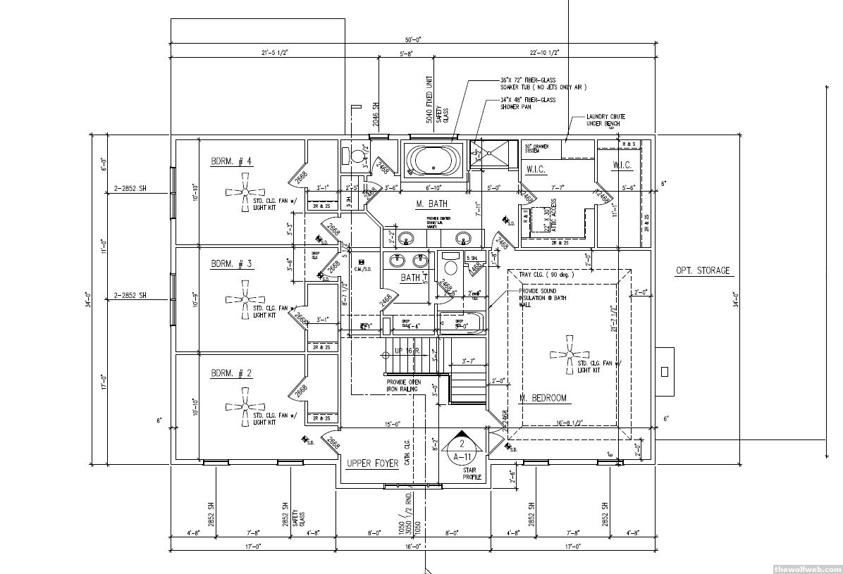
Second Floor:

2/18/2013 2:33:45 PM

scotieb24
Commish
11114 Posts
user info
edit post

Looks Ballerific, good luck!

2/18/2013 2:42:21 PM

NutGrass
All American
3695 Posts
user info
edit post

We built our house about five years ago and we acted as our own GC (picked our own framer, electrician, did our own plumping, moulding, etc). It was a fun journey, hopefully saved some money, and learned alot along the way.

It was only about half the size of this house! Nice looking house.

2/18/2013 2:48:43 PM

FuhCtious
All American
11955 Posts
user info
edit post

So how much is the price difference on building your own home versus buying one of roughly similar specifications?

2/18/2013 6:18:06 PM

TreeTwista10
MAGAs4Mamdani
150611 Posts
user info
edit post

laundry chute into the in-law suite?

2/18/2013 6:28:28 PM

panthersny
All American
9550 Posts
user info
edit post

Laundry shoot goes into the Mudroom (right next to the washer)

I am sure you can find a home with the similar feature for the cost of building....BUT

this layout is exactly what we want, the lot is what we want, the quality of the build will be to our specs (yes we gave the builders a 32 page spec sheet/pictures)

as 2 engineers we are very particular, including the materials to be used - we are using strucural insulated sheeting (SIS) vice OSB/House wrap.

If someone wants our final specs I can send the 24 page document we signed with our contract...send me a PM.

2/18/2013 6:43:19 PM

ctnz71
All American
7207 Posts
user info
edit post

How close were your builders? Did each know you were getting 7 other numbers?

2/18/2013 8:08:46 PM

CalledToArms
All American
22025 Posts
user info
edit post

looks and sounds very nice. Way bigger than I could imagine wanting myself though haha.

2/18/2013 9:23:04 PM

panthersny
All American
9550 Posts
user info
edit post

I was really shocked by how far some of them were.

We started out with 3 builders and learned about more over time. One builder came in @ $130,000 more than then next lower bid. from lowest to highest there was a $200,000 difference...

I had no problem telling them they were going against other builders...but only 1 asked who else I was talking with. If this bothers them then walk away...fast....

We started talking with builders about 13 months ago as an FYI and just signed with our builder maybe 4 weeks ago. We have been talking with him for 10 months prior to signing...


key things we learned:

1) Builder personalities are important - if you can't have a meaningful conversation then BYE! We had one who had a reputation for great houses, but he was a lot of my way or else. Also their critical thinking skill sets and ability to think outside the box are important. The guy we settled with had all of this, plus a Bachelor of Science in Industrial Technology, a Concentration in Construction Science. While this may not seem like much, we felt it added dimension and better understanding that built on top of his experiences.

2) Not all builders build to the same level/quality....it is important to tour houses they are building. I noticed small differences in the structural methods that can make a difference in how solid of a home you have. What is standard versus you have to pay extra for them to do.

3) Their overhead!! The builder who was soo much higher had a LOT more overhead as they were a custom builder also building 3 subdivisions....way too much overhead and people on the payroll

4) Can they build the size house you are looking for...and do they do it with regularity. We are building a rather large home...so this is KEY

5) Their subs....will they willingly tell you who they sub work to? if not be wary.

6) Do you want your home to be high efficiency? Finding a builder who builds Earthcraft or Energy Star certified homes is tough...or one even willing to try.

7) Ask your local realtors and local building supply stores for their thoughts...amazed at the 'truth' people will tell you....especiay realtors.

8) Be willing to walk away....JUST DO IT

9) Find a good bank....the lender is almost important as the builder

10) Get bids (but give them plans and solid details of what you want...this is critical to getting apples to apples comparisons)

11) I am sure there are more things but this is a good start.


Feel free to ask any/all questions. I learned alot from watching my parents go through this and 2 friends at work...so I am incorporating those lessons into my efforts.

2/18/2013 9:34:06 PM

wlb420
All American
9053 Posts
user info
edit post

plans look great, but if you're building a dream house like that, why not go ahead and make the entire exterior stone/brick instead of siding? Is is a cost thing, or just not a priority for you?

2/19/2013 12:35:29 PM

panthersny
All American
9550 Posts
user info
edit post

Def a $$ thing...would have loved to go all brick/stone....it would have been at least another $70K

2/19/2013 7:41:57 PM

Perlith
All American
7620 Posts
user info
edit post

Quote :
"So how much is the price difference on building your own home versus buying one of roughly similar specifications?"


"It depends". I know for us it was close to 25% by the time we were done. I'll throw out some specific examples.

- Clearing off land, gravel driveway, other misc. heavy equipment work - we own the heavy equipment, only costs were fuel+food: $15k saved.
- Deals on hardwood floors, quartz countertops: $10k saved.
- Doing our own plumbing, painting, light/fan fixtures: $5k saved.

List goes on. While the savings is a huge plus, getting your home the way you want it when done is the real joy behind all of it. We weren't forced into a specific selection of things to choose from, it was what we wanted.

[Edited on February 19, 2013 at 8:40 PM. Reason : .]

2/19/2013 8:39:14 PM

ctnz71
All American
7207 Posts
user info
edit post



Quote :
"4) Can they build the size house you are looking for...and do they do it with regularity. We are building a rather large home...so this is KEY"
the size of the house doesn't matter... I've seen houses half this size that were far more difficult to build.


Quote :
"6) Do you want your home to be high efficiency? Finding a builder who builds Earthcraft or Energy Star certified homes is tough...or one even willing to try."
this is just a certification at the end. Nothing really special about it. The Hvac, framer, and insulation guy have a few things to do and that's it. A lot of builders don't do energy star anymore because most of it is code anyway. It's more expensive for the homeowner and many people have figured out its not worth the extra cost.

Quote :
"7) Ask your local realtors and local building supply stores for their thoughts...amazed at the 'truth' people will tell you....especiay realtors. "
you'd be better suited to talk to previous homeowners. A salesman and real estate agent don't live in the houses


Quote :
"10) Get bids (but give them plans and solid details of what you want...this is critical to getting apples to apples comparisons) "
sounds like you didn't get apples to apples quotes if they were $200k apart


Where did your builder fall in the numbers?

Also, did you actually get 8 numbers?

[Edited on February 19, 2013 at 10:21 PM. Reason : O]

2/19/2013 10:21:15 PM

slut
All American
8357 Posts
user info
edit post

Quote :
"sounds like you didn't get apples to apples quotes if they were $200k apart"


If there were 8 bids, & some of the contractors weren't very experienced, that isn't a surprising swing to me. Depends on what the average bid was of course, this obviously isn't a $200k house.

2/19/2013 10:24:18 PM

ctnz71
All American
7207 Posts
user info
edit post

Ill bet the +$200k number is a guy that has plenty going on. If I knew there were 7 other builders involved I'd throw a huge number out there and so it would be worth it to me. Sounds like a nightmare in the making. That's the way engineers are made though I guess.

2/19/2013 11:21:25 PM

panthersny
All American
9550 Posts
user info
edit post

@Perlith....very good points The land clearing can kill you depending on the lot.

@ctnz71

on 4 - yes I concur....but if your building a 5000 sq ft home and talking to a builder that normally build 1800-3000 sq ft....the project may be beyond their normal reach. Any home, no matter the size, can present all sort of challenges....I am just speaking from my view point, but good to have others point of view also.

on 6 - maybe just a certification to you, but its a lifestyle choice to many others, including in the building materials and way you build the home to others. Also I will save about $1,000/year on my property taxes because of the code in my county...Earthcraft is totally different than energystar....

on 7 - Yes talking to previous homeowners is nice...but you have to find homeowners who have built with those builders OTHER than the references the builder gives you...easier said than done. We did this as much as we can....and the results can be interesting. I will tell you though if local subs don't have good things to say about a builder then you can bet they are probably not doing quality work

on 10 - we did get apples to apples comparisons....most of the builders were within a $40K range....just shocked by the one HIGH bid and one LOW bid.....We gave the builders a complete set of plans (including framing, foundations, roof trusses....plus a spec writeup)

In the end we got 7 numbers out of the 8. Our builder fell in the upper 2/3rd range

2/20/2013 6:33:58 AM

CalledToArms
All American
22025 Posts
user info
edit post

Energy Star is a sham. Earthcraft is fine, but I can't remember what model energy code they benchmark against. Some of these places benchmark against old codes to inflate their % improvement over the code.

Even LEED is a sham for the most part. I do energy modeling as part of my job and I definitely agree with improving energy efficiency (a lot of the standard minimum-code-compliance methods are not that great for sure) and keeping sustainability in mind when building. Just be careful with some of the certifications. You can implement the same stuff on your own without paying to get any sort of certification.

I think it's awesome that you are trying to make that a priority since it does cost more money to implement that stuff, just keep in mind how much the actual certifications are worth to you.

[Edited on February 20, 2013 at 7:32 AM. Reason : ]

2/20/2013 7:25:18 AM

PaulISdead
All American
8973 Posts
user info
edit post

Looks great and good luck.

Are you going for $100/sqft?

Are Master on the main and ballroom master baths still popular?

2/20/2013 8:22:52 AM

wdprice3
BinaryBuffonary
45912 Posts
user info
edit post

nice plans! I would love to build my own house... but I could never handle giving the reigns up to some contractor to spend all day on and I just show up at the end of the day wondering what all was done (in short, I don't trust a contractor I know, at least not yet). Not to mention, I would use so many "higher" end/quality building products, I could never afford anything sizeable

[Edited on February 20, 2013 at 9:23 AM. Reason : .]

2/20/2013 9:23:04 AM

panthersny
All American
9550 Posts
user info
edit post

@Paul, 6242 is total Sq Ft (finished/unfinished) @$83/sq ft.....this includes clearing the lot.

If you go by finished sq ft only its $116.50/sq ft

2/20/2013 3:52:39 PM

David0603
All American
12764 Posts
user info
edit post

Why the hell do you need a house that big?

2/20/2013 4:37:53 PM

panthersny
All American
9550 Posts
user info
edit post

will have space for MIL to move in, wanted bigger rooms, not more of them from our current home, and wanted the work space for my projects....plus I am a major gardener and projects guy

2/20/2013 5:31:53 PM

ctnz71
All American
7207 Posts
user info
edit post

Did you discuss cost plus with any builders? I bet you could have got it down to $100-$105/sqft

2/20/2013 8:09:49 PM

panthersny
All American
9550 Posts
user info
edit post

yes I did....

As a note I work for the US Navy and manage multi million dollar maintenance and modernization Fixed price and cost plus contracts, run a major service life extension program worth a quarter billion, and am developing a mid-life program valued at over $1 billion....I live the world of Firm Fixed Price and Cost Plus Award/Incentive Fee contracts.....

There are pros/cons to both sides, but having such a detailed understanding of our requirements, timeframe to execute, planning conducted in advance, and specs completed, it made more sense to go with a fixed price contract.

GEEZZZ I feel like a big DoD acquisition nerd reading that! But 9 years in the contract execution have pushed me to certain ways.

2/20/2013 8:14:13 PM

ctnz71
All American
7207 Posts
user info
edit post

Got it. I'm adding to my topics

2/20/2013 8:16:42 PM

ncsustash
All American
3421 Posts
user info
edit post

Nice house....love the work spaces.

I don't understand why there is a walk in closet in a walk in closet.

2/21/2013 10:13:47 AM

panthersny
All American
9550 Posts
user info
edit post

^that is the his/hers WIC Closets. Originally one had a door into the bedroom but that made no sense since we lose wall space for a piece of furniture we wanted there...so we did it where its a closet in a closet, and mine obviouslly is the smaller one and my wife never has to go into it to see my mess!

win win for both of us.

[Edited on February 21, 2013 at 10:23 PM. Reason : typo]

2/21/2013 10:23:06 PM

David0603
All American
12764 Posts
user info
edit post

Meh, I would have just gone with one gigantic walk in closet.

2/21/2013 10:48:59 PM

wdprice3
BinaryBuffonary
45912 Posts
user info
edit post

yeh, I would have done 1 large closet and dropped some cash on a nice custom closet; and if you still wanted the feel of 2 closets, then use the custom closet to create a divider. It's much more impressive to walk into a huge closet that has decent or better custom storage.

2/22/2013 12:52:49 PM

BobbyDigital
Thots and Prayers
41780 Posts
user info
edit post

it seems like the living areas are smaller than the bedrooms.

2/22/2013 3:18:56 PM

PaulISdead
All American
8973 Posts
user info
edit post

i would never submit my plans to a large crowd, without getting paid, because of the wide variety of opinions

2/22/2013 7:25:54 PM

panthersny
All American
9550 Posts
user info
edit post

@Bobby...the kids bedroom are 11x14 once you take out the closets....the areas downstairs are same or larger

2/22/2013 9:29:11 PM

Honkeyball
All American
1684 Posts
user info
edit post

panthersny Who was your architect?

2/23/2013 2:29:01 PM

panthersny
All American
9550 Posts
user info
edit post

Dave Smithson @ Home Expressions in spotsylvania VA

2/23/2013 7:48:37 PM

BridgetSPK
#1 Sir Purr Fan
31378 Posts
user info
edit post

Is there a reason why there aren't a lot of windows on the back of the house?

I've noticed most homes are like that.


I love the garages!

2/23/2013 10:50:06 PM

panthersny
All American
9550 Posts
user info
edit post

The rear of the home will have the southern exposure, so we don't need as many and the sunroom will let in tons of light.

The front being a northern exposure requires more windows to allow similar amount of natural light.....its the little things!

Teas a good question

2/23/2013 10:54:58 PM

Mindstorm
All American
15858 Posts
user info
edit post

Err, did you look up this architect to verify they were registered before going with them? That name doesn't seem to pop up as valid with any NC board of architecture type websites.

[Edited on February 24, 2013 at 12:17 AM. Reason : or virginia for that matter]

2/24/2013 12:00:29 AM

se7entythree
YOSHIYOSHI
17385 Posts
user info
edit post

yeah, definitely not registered under his name or his firm's name in NC. i didn't bother to check VA. (i work at an architectural firm in nc)

i personally really don't like houses with so few windows (there are ways to mitigate exposure), but to each his own.

---

i asked what it meant if he isn't registered in NC. here's the reply:
"If he's not an architect, he is a draftsman. He might call himself a designer but he can't call himself an architect unless he holds a license. If he does, that is illegal."

Almost anybody can design a house though. They just can't call themselves an architect or they'll get in trouble.

[Edited on February 24, 2013 at 9:13 AM. Reason : ]

2/24/2013 8:55:37 AM

panthersny
All American
9550 Posts
user info
edit post

Why would he show up in NC when I am in VA?

2/24/2013 9:30:17 AM

se7entythree
YOSHIYOSHI
17385 Posts
user info
edit post

i did later check VA. he's not registered there either (as Mindstorm mentioned)

2/24/2013 6:41:52 PM

panthersny
All American
9550 Posts
user info
edit post

Got it...either way wearer pleased with our plan and should finish the final site plan and engineering work this week....then onto permits

2/24/2013 11:18:18 PM

slut
All American
8357 Posts
user info
edit post

There really aren't very many quality residential architects anyway. The bulk of the good ones are in commercial & the good ones in residential are expensive. From personal experience, the last thing you want is a commercial architect making the switch to residential.

All that aside, if someone represented themselves to me as an architect & they are not, I would be pretty pissed. Its one thing if you're paying a premium over a designer, but most people misrepresenting themselves are going to have some other shortcomings that you may not be aware of yet.

2/24/2013 11:22:53 PM

 Message Boards » Old School » adventures of building a custom.home Page [1] 2 3 4 5 6, Next  
go to top | |
Admin Options : move topic | lock topic

© 2026 by The Wolf Web - All Rights Reserved.
The material located at this site is not endorsed, sponsored or provided by or on behalf of North Carolina State University.
Powered by CrazyWeb v2.39 - our disclaimer.